Alla bilder

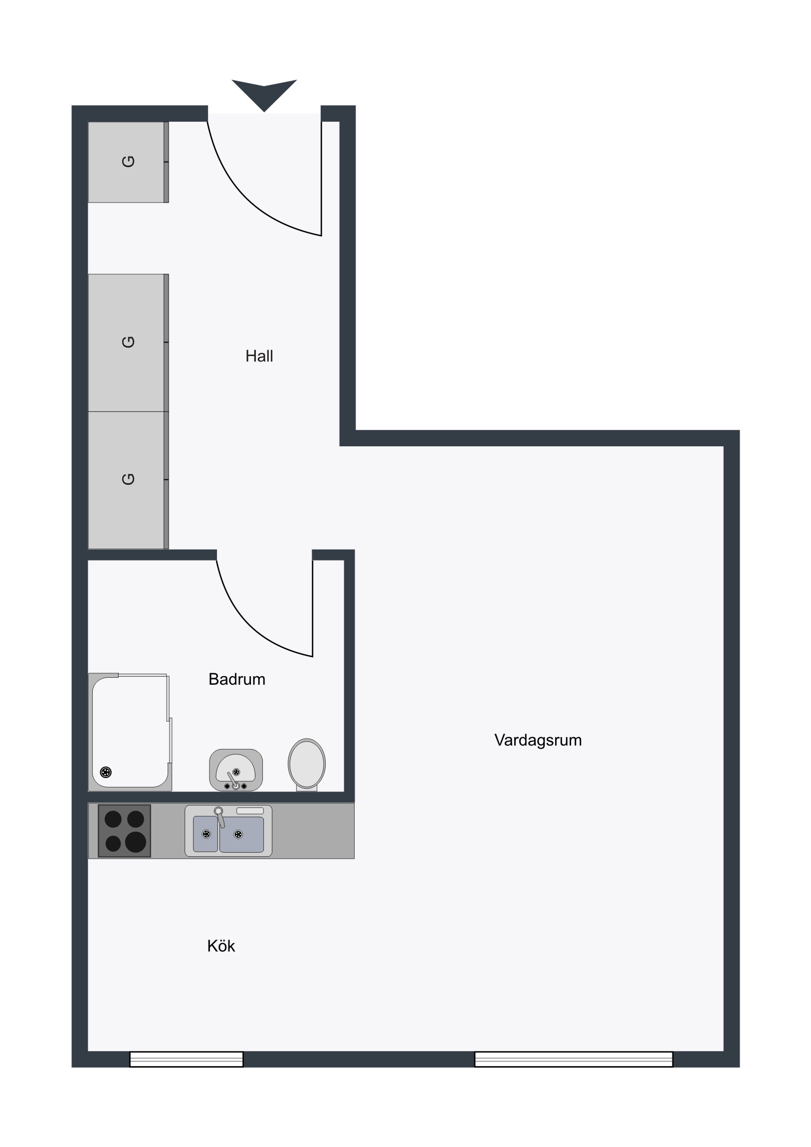
Lägenhet - Zenithgatan 34, Malmö

Förstahandskontrakt

Beskrivning

FÖRSTAHANDSKONTRAKT – ANSÖK FÖR MER INFORMATION

KONTAKTA HYRESVÄRD

Köp Premium för 5 kr för 2 dagar, därefter 349 kr/mån om du väljer att fortsätta.

Om boendet
  • Tills vidare.
KONTAKTA HYRESVÄRD

Beskrivning

FÖRSTAHANDSKONTRAKT – ANSÖK FÖR MER INFORMATION

Bekvämligheter
  • Öppen spis
  • Hiss
  • Kabel-TV
  • Dusch